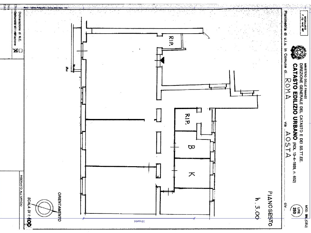
VENDITA SAN GIOVANNI RE DI ROMA (VIA AOSTA)


Scheda Immobile
Offerta: VENDITA
Tipologia: RESIDENZIALE
Zona: SAN GIOVANNI – APPIO LATINO
Superficie: 160 m2
Piano: SESTO
Zone Giorno: 2
Camere: 3
Servizi: 2
Prezzo: 720.000 €

CasaRoma Immobili Prime Partner di UniCredit RE Services propone in vendita nella zona di San Giovanni Re di Roma, Via Aosta, un bellissimo appartamento sito al sesto piano di un palazzo completamente ristrutturato composto da un salone doppio con vista su San Giovanni in Laterano due camere un'ampia cameretta studiolo cucina abitabile doppi servizi due ripostigli balcone - Classe energetica "G" - € 720.000,00 permute TEL.: 06.39.379.111

ASCENSORE BALCONE DOPPIA ESPOSIZIONE LUMINOSO PANORAMICO RISCALDAMENTO AUTONOMO

Via Aosta, Roma, RM, Italia







CERCA